New Home Architectural Plans
New Home Architectural Plans for Sydney & Western Sydney
Accurate architectural plans are the foundation of a successful build. At Trinity Design & Planning, we prepare professional, council-ready plans for new homes across Fairfield, Campbelltown , Parramatta, Liverpool, Bankstown, Blacktown, Penrith, Sydney, Inner West and surrounding suburbs.
These plans form the blueprint your builder, certifier and council rely on, ensuring your home design is compliant, functional and cost-efficient to construct.
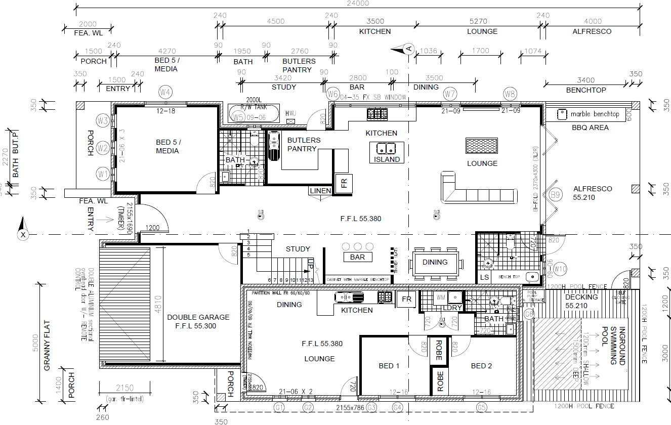
What’s Included in a Full Plan SetSite Plan
Shows boundaries, setbacks, driveway placement, levels, and stormwater direction.
Floor Plans
Fully dimensioned layouts showing walls, openings, fixtures and room relationships.
Elevations
Street-facing and side-facing representations showing heights, materials and roof design.
Sections
Cut-through views explaining ceiling heights, structural relationships and construction depths.
Roof Plan
Pitch directions and drainage details.
Window & Door Schedule
Essential for builders, fabricators and certifiers.
Shadow Diagrams (if DA required)
Demonstrates solar compliance.
Compliant and Approval-Ready Plans
Our plans meet NSW planning and building requirements including:
Australia Standards drafting conventions
NSW Planning Portal DA/CDC lodgement requirements
Council DCPs for Western Sydney
Basix obligations
Privacy and overshadowing controls
This ensures your plans are accepted with fewer amendments.
Designed for Your Site & Lifestyle
We adapt every plan to suit:
Lot width, slope and orientation
Streetscape character
Family needs (open plan, multiple living spaces, study areas, etc.)
Build budget
Energy efficiency opportunities
A Streamlined Process
1. Review of survey, 149 certificates, sewer diagrams
2. Drafting of initial plans
3. Design revision rounds
4. Preparation of final drawing set
5. Submission packages for DA or CDC
Serving Western Sydney with Local Expertise
Working frequently across suburbs like Fairfield, Campbelltown , Parramatta, Liverpool, Bankstown, Blacktown, Penrith, Sydney, Inner West we anticipate local council expectations and integrate them early.
Book Your Architectural Plan Package Today
Clear plans = smoother build + fewer costs + faster approvals.
Contact us today via email or call 0401 779 749

