Custom Home Design
Custom Home Design Services in Sydney & Western Sydney
Designing a new home is one of the biggest investments most people make, and clear architectural planning is the key to a smooth build. Trinity Design & Planning provides custom home design services across Fairfield, Campbelltown , Parramatta, Liverpool, Bankstown, Blacktown, Penrith, Sydney, Inner West and neighbouring suburbs.
Our approach blends creative design with practical compliance, ensuring your home not only looks beautiful but also meets NSW planning requirements and construction standards.
A Tailored Design Experience
Unlike project-home templates, a custom home design is shaped around your lifestyle, site conditions, budget and long-term plans. Whether you’re building on a vacant block, subdividing land, or replacing an older dwelling, we work closely with you to create a design that makes the most of the site while complying with council or CDC controls.
What we consider in your design:
Natural light and ventilation pathways
Bedroom placement and privacy
Family, entertainment and outdoor living needs
Street frontage and façade character
Site slope, easements and setbacks
Energy efficiency (BASIX compliance)
Budget alignment with build feasibility.
Concept to Approval - A Clear, Guided Process
We understand the NSW approvals system, so your custom home design is prepared with DA or CDC pathways in mind from day one.
1. Initial Consultation
We discuss your goals, preferred architectural style, functional needs and budget expectations. This includes understanding local council rules for suburbs like Fairfield, Liverpool or Cumberland LGAs.
2. Site & Feasibility Review
We analyse your lot, survey (if available), planning controls, solar orientation and stormwater requirements.
3. Concept Design
You receive initial floor plans, façade concepts and spatial arrangements to review. These are refined until everything aligns with your expectations.
4. Final Architectural Drawings
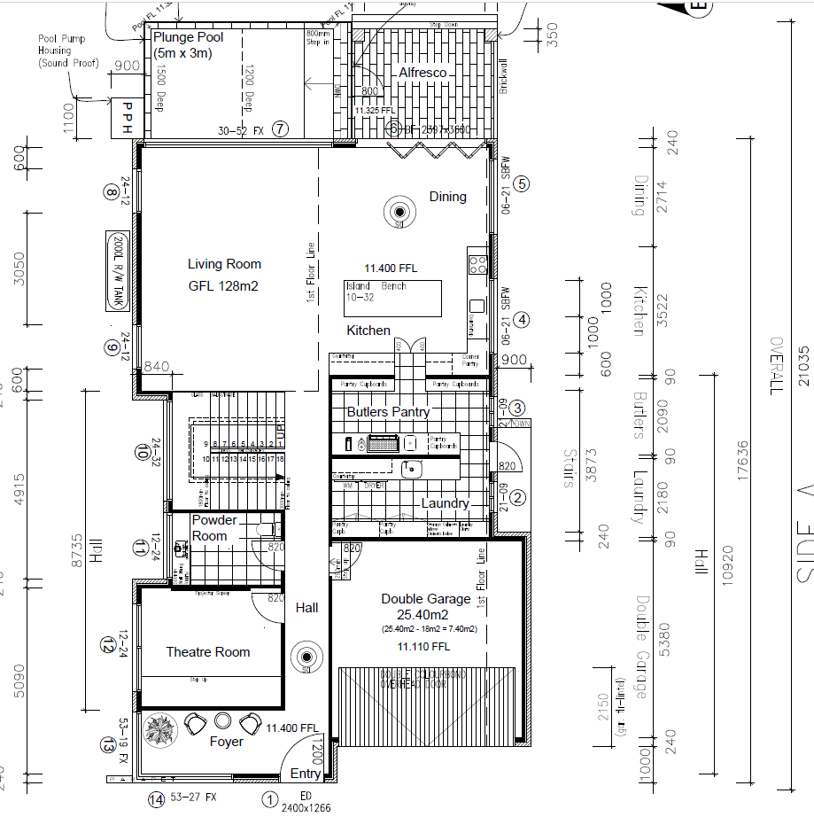
We produce clear, professional plans including:
Floor plans
Elevations
Sections
Roof plans
Window schedules
Site plan
5. Documentation for DA or CDC
We prepare approval-ready drawings that meet:
NSW Complying Development Code
Local council DCPs
State Environmental Planning Policies
BASIX energy/water requirements
Designed for Practical, Cost-Effective Construction
Great design must also work for your builder. Trinity Design & Planning produces drafting that is clear and builder-friendly, helping minimise variations, delays and misinterpretation.
Builders appreciate our:
Accurate dimensions
Clear notation
Millimetre-precise layouts
Logical sequencing of documents
Local Knowledge That Saves You Time
We regularly design homes across suburbs like Fairfield West, Wetherill Park, Smithfield, Prairiewood and Liverpool. Because we understand each council’s controls, we flag potential issues early — saving you costly redesigns or approval delays.
We also guide you on whether your project is better suited for:
DA (Development Application)
CDC (Complying Development Certificate)
Choose Trinity Design & Planning
Personalised design tailored to your family
Clear approval-ready documentation
Strong understanding of Western Sydney planning rules
Collaborative, supportive design process
Transparent communication from start to finish
High-detail drawings that reduce builder uncertainty
Book a Custom Home Design Consultation
Let’s bring your vision to life.
We respond quickly — usually within 1–2 business hours.
Contact us today via email or call 0401 779 749

